|
华为iSitePower-A ICC330-H1-C8 室外机柜
华为iSitePower-A ICC330-H1-C8 室外机柜 图 4-1 ICC330-H1-C6 型号说明
表 4-1 ICC330-H1-C6 和 ICC330-H1-C8 型号说明
图 4-6 ICC330-H1-C8 外观
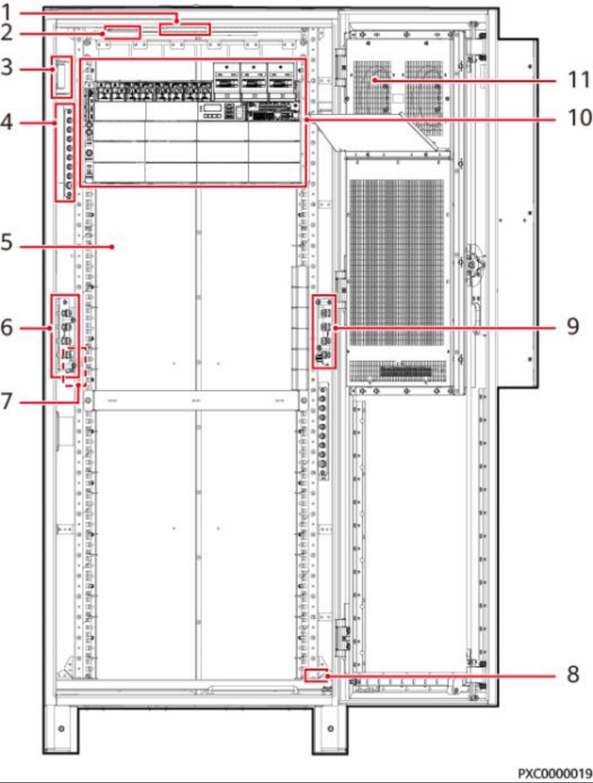
图 4-7 ICC330-H1-C8 内部结构
( 1 )照明灯 (2)烟雾传感器 (3)温控设备电源转接盒 (4)接地排 (5)设备安装空间 (6)RTN+母排 ( 7 )数字温湿度传感器 (8)水浸传感器 (9)-48V母排 ( 10)DCDU-600AN1 ( 11 )热交换( HXC300L) |







