首页 >> 产品分类 >>防火墙 >> 华为TP48600B-N16C2 通信电源
详细说明

华为TP48600B-N16C2 通信电源

暂无价格
  • 产品说明

华为TP48600B-N16C2 通信电源

2-1  TP48600B-N16C2 的机柜外观

 


2.2 型号说明

TP48600B-N16C2 的型号说明如 2-2所示。

 

2-2  TP48600B-N16C2 的型号说明

 

 

 

 

 

2.3 系统特点

l

 

 

电压范围宽至 85VAC300VAC

l

完善的电池管理功能

l

完善的交、直流防雷设计

l

提供一路 RS485/RS232 接口

l

支持华为网管协议和电总协议,可与华为 NetEco 网管(V300R006C10 以上版

本)、M2000 网管(V200R014C00 以上版本)或第三方网管通信,组网灵活,可 实现远程管理,无人值守

l

支持 LCD 界面中英文显示、按键操作

l

支持整流模块热插拔和高效、标效整流模块混插

l

整流模块功率因数值达 0.99

l

高效整流模块效率最高达到 96%,标效整流模块效率最高达到 93%

 

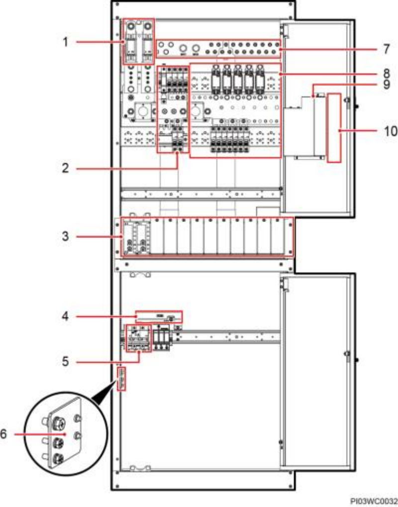
3-1  内部结构

 

1)电池熔丝          2)重要负载下电支路空开     3)整流模块安装空


4N 接线排           5)交流输入空开             6)机柜接地排

7RTN+母排         8)次要负载下电支路空开或熔 9)监控单元                              SMU06C

10SNMP 模块安装空 

 


行业新闻
更多
电话直呼
在线客服
在线留言
发送邮件
联系我们:
17710815462
17710815462
17710815462
销售经理
点击这里给我发消息
技术支持
点击这里给我发消息
售后咨询
点击这里给我发消息
还可输入字符250(限制字符250)
技术支持: 建站ABC | 管理登录
×
seo seo